Παράλειψη εντολών κορδέλας
Μετάβαση στο κύριο περιεχόμενο
Σελίδες τοποθεσίας


ΥΠΠΟΑ: Αποκαθίστανται οι Ανακτορικοί Κήποι στο Τατόι

​Η αποκατάσταση των Κήπων του Ανακτόρου, στο π. βασιλικό κτήμα Τατοΐου, προχωρεί στο πλαίσιο του συνολικού σχεδιασμού αποκατάστασης και ανάδειξης του Τατοΐου. Κεντρική ιδέα της μελέτης, επί της οποίας γνωμοδότησε ομοφώνως θετικά το Κεντρικό Συμβούλιο Νεωτέρων Μνημείων, είναι η αποκατάσταση των Κήπων με βάση τις αρχικές χαράξεις τους, αλλά και τις σύγχρονες αρχές πυροπροστασίας και βιωσιμότητας.

Όπως δήλωσε η Υπουργός Πολιτισμού και Αθλητισμού Λίνα Μενδώνη «Η αποκατάσταση και ανάδειξη των Κήπων του Ανακτόρου εντάσσονται στον συνολικό σχεδιασμό του Υπουργείου Πολιτισμού και Αθλητισμού για την αποκατάσταση και ανάδειξη του ιστορικού πυρήνα του Τατοΐου, στο πλαίσιο της στρατηγικής αξιοποίησής του, ως μνημειακού συνόλου. Η ιστορική τεκμηρίωση, το θεσμικό πλαίσιο για τη διατήρηση και αποκατάσταση των ιστορικών Κήπων, τα τοπογραφικά χαρακτηριστικά, η χρήση κατάλληλου φυτικού υλικού, προσαρμοσμένου στο μικροκλίμα και ανθεκτικού στη φωτιά, αλλά και η χρήση υλικών με βάση τις αρχές της αναστρεψιμότητας και της βιωσιμότητας, αποτελούν βασικές παραμέτρους του σχεδιασμού της μελέτης αποκατάστασης. Οι Κήποι αναβιώνουν, ως σημαντικό μέρος της χωροταξικής σύνθεσης και της ζωής στο π. βασιλικό ενδιαίτημα, αλλά και της εμπειρίας του σημερινού επισκέπτη».

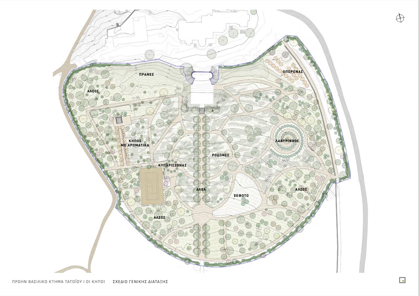
H θέση των Κήπων βρίσκεται νότια του κτηριακού συνόλου του Ανακτόρου και των Μαγειρείων και σε άμεση γειτνίαση με την Πύλη της Λεύκας. Το βορειότερο επίπεδο των Κήπων βρίσκεται στην υψηλότερη στάθμη περιλαμβάνοντας τις διαμορφώσεις που συνδέονται άμεσα με το Ανάκτορο. Από τη στάθμη αυτή ξεκινά η διπλή πλατιά μαρμάρινη σκάλα, σε συμμετρική διάταξη, για την πρόσβαση στην κατώτερη στάθμη των Κήπων. Το αμέσως χαμηλότερο επίπεδο που περιλαμβάνει την ελλειψοειδή κρήνη και την κολυμβητική δεξαμενή κατασκευάστηκε τη δεκαετία του 1950. Από τη στάθμη αυτή και κάτω, διαμορφώνεται η κεντρική Αλέα των Κήπων, η οποία έχει σημαντικό ρόλο στη χωρική οργάνωση των Κήπων, ενώ εκατέρωθεν, διαμορφώνονται μονοπάτια διατεταγμένα σε ομόκεντρους κύκλους. Στις θέσεις, όπου διασταυρώνονται οι εγκάρσιες πορείες με την κυκλική διάταξη, προκύπτουν επιμέρους κυκλικοί κόμβοι. Εντοπίζεται κι ένας επιπλέον κόμβος στο κέντρο της σπείρας, ως απόληξη της διαδρομής στον Λαβύρινθο. Κεντρικά και ανατολικά της Αλέας, ο σχεδιασμός υποστηρίζει την λογική του περιπάτου. Στον τομέα, στα δυτικά της Aλέας, χωροθετούνται χρηστικές λειτουργίες όπως το θερμοκήπιο και το γήπεδο τένις.

Η περιοχή επέμβασης της μελέτης περιλαμβάνει έκταση 34 στρεμμάτων και περιμέτρου 762 μέτρων. Ο ρόλος των δένδρων είναι πολύ σημαντικός στη σύνθεση του φυτικού υλικού. Φυτεύονται περίπου 450 δένδρα. Τα μονοπάτια ακολουθούν τις αρχικές χαράξεις, όπως αυτές υφίστανται και γίνονται εντοπίζονται από τα ίχνη της οριοθέτησής τους. Η δημιουργία υδατοπερατών επιφανειών συμβάλλει στην ανάπτυξη της βιοποικιλότητας διασφαλίζοντας φυσικές συνθήκες στο περιβάλλον, ευνοώντας συγχρόνως την ανάπτυξη τοπικής χλωρίδας και πανίδας.

Η μελέτη αποκατάστασης των Κήπων του Ανακτόρου στο Τατόι εκπονείται από την Ελλη Παγκάλου και αποτελεί χορηγία της ΑΙΓΕΑΣ ΑΜΚΕ προς το Υπουργείο Πολιτισμού και Αθλητισμού. Η υλοποίηση του έργου χρημαοτοδοτείται με 3.000.000 ευρώ από το Ταμείο Ανάκαμψης και Ανθεκτικότητας

Το Κτήμα αγοράστηκε από τον Γεώργιο Ά το 1872. Το 1886 ολοκληρώθηκε το Ανάκτορο και το 1890 οι Κήποι Η διαμόρφωση των Κήπων γύρω από το Ανάκτορο, καθώς και οι εργασίες ανάπλασης όλου του κτήματος είναι έργο του Λουδοβίκου Μύντερ Δανού δασολόγου και φιλέλληνα, διευθυντή του Κτήματος (1873-1892). To 1916 ξέσπασε η Μεγάλη Πυρκαγιά από την οποία διασώθηκαν το Νέο Ανάκτορο και οι Κήποι. Το διάστημα 1924-1926 εφαρμόστηκε δεκαετές πρόγραμμα της Ανωτέρας Δασολογικής και Ανωτέρας Γεωπονικής Σχολής για τη διαχείριση των Κήπων. Τη δεκαετία του 1950 έγινε η προσθήκη της πισίνας στο επίπεδο του Grotto. Η μεγα-πυρκαγιά του 2021 κατέστρεψε το μεγαλύτερο τμήμα των φυτεύσεων, το οποίο με το πέρας του έργου θα έχει αποκατασταθεί.



Φωτογραφίες:

Σχετικά Αρχεία:

Κατηγορία:

1;#Δελτίο Τύπου

Ημερομηνία Έκδοσης:

17/03/2023
 
Ημερολόγιο
Εκδηλώσεις
    ​​​​