Παράλειψη εντολών κορδέλας
Μετάβαση στο κύριο περιεχόμενο
Σελίδες τοποθεσίας


Αποκατάσταση αρχοντικού Πηχεώνος και μετατροπή του σε Μουσείο Μακεδονικού Αγώνα
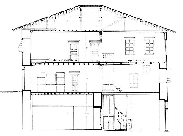
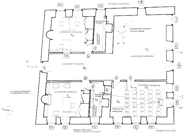
Το διώροφο αρχοντικό Πηχεών στην Καστοριά είναι μνημείο του 18ου αιώνα με μεγάλη ιστορική αξία. Το 99 εγκρίθηκε από το ΥΠ.ΠΟ. η μελέτη αποκατάστασης του αρχοντικού και μετατροπής του σε Μουσείο Μακεδονικού Αγώνα. Το έργο της αποκατάστασης άρχισε το ίδιο έτος. Ολοκληρώθηκε η στερέωση της τοιχοποιίας του αρχοντικού με αρμολογήματα, ενέματα, στερέωση των τσατμάδων. Ολοκληρώθηκαν οι εργασίες συντήρησης των δαπέδων, οροφών, κουφωμάτων. Ανακατασκευάστηκαν τα επιχρίσματα. Το μουσείο αναπτύσσεται στο ισόγειο και στον όροφο του αρχοντικού, ενώ το υπόγειο διατίθεται για βοηθητικές χρήσεις. Έτσι στο ισόγειο υπάρχει ο χώρος υποδοχής με το εκδοτήριο εισιτηρίων και το φυλάκιο, τα γραφεία, χώροι εξυπηρέτησης αναγνωστών, αίθουσα προβολών και η αρχή της έκθεσης. Ο όροφος διατίθεται στο σύνολό του για εκθεσιακή χρήση. Στο υπόγειο υπάρχει το λεβητοστάσιο το οποίο διαμορφώνεται σύμφωνα με τους κανονισμούς σαν πυροδιαμέρισμα, χώροι υγιεινής, κουζίνα και κυλικείο . Ο αύλειος χώρος προβλέπεται να φιλοξενεί υπαίθριες εκδηλώσεις.

Οι εργασίες αποκατάστασης του αρχοντικού Πηχεώνος στην Καστοριά και μετατροπής του σε Μουσείο Μακεδονικού αγώνα άρχισαν το 1999.
Φορέας υλοποίησης ήταν ο Δήμος Καστοριάς, ενώ την εποπτεία είχε μηχανικός της 11ης ΕΒΑ μετά από αρμόδια ανάθεση. Εφαρμόστηκε η εγκεκριμένη μελέτη (μελέτη Κ.Θεοχαρίδου αρχιτέκτων μηχανικός, Αθ. Μέλλιος πολιτικός μηχανικός, Χ.Τζήμας μηχανολόγος μηχανικός, Δ.Μουτίδου τοπογράφος μηχανικός. επίβλεψη εργασιών τεχνική υπηρεσία Δήμου Καστοριάς, εποπτεία Κωνστ. Δρόσου πολιτικός μηχανικός 11ης ΕΒΑ). Ο προϋπολογισμός ένταξης του έργου στο Β ΚΠΣ (ΣΑΝΑ 2) ήταν 122.602.000 δρχ. και οι εργασίες ήδη ολοκληρώθηκαν.

Χρηματοδότης: Noμαρχιακή Αυτοδιοίκηση Καστοριάς

Φωτογραφίες:

Ημερομηνία:

28/09/1999 - 30/10/2001

Τόπος:

  • Καστοριά, Καστοριάς

Αρμόδιες Υπηρεσίες ή Φορείς:

Εμπλεκόμενες Υπηρεσίες ή Φορείς:

Επιστημονικοί Υπεύθυνοι:

Κωνσταντία Δρόσου
Αναστηλώτρια πολιτικός μηχανικός
Τηλ: +30 23310 29737
Fax: +30 23310 71725, 2310 457902
e-mail: asioz@tee.gr
 
Κλεοπάτρα Θεολογίδου
Αναστηλώτρια αρχιτέκτων μηχανικός
Τηλ: +30 23310 29737
 
Κώστας Φλώρος
Πολιτικός μηχανικός ΔΑΒΜΜ
Τηλ: +30 210 3251688

Βιβλιογραφία:

  • Δρόσου Κωνσταντία, Αρχαιολογικό Δελτίο, Χρονικά, Αθήνα, 2000
  • Θεολογίδου Κ., Αρχαιολογικό Δελτίο, Χρονικά, Αθήνα, 1997
  • Μουτσόπουλος Νικόλαος, Καστοριά, Θεσσαλονίκη, 1974
  • Μουτσόπουλος Νικόλαος, Καστοριά:Τα αρχοντικά, Αθήνα, 1962
  • Τσαμίσης Παντελής, Η Καστοριά και τα μνημεία της, Αθήνα, 1949

Ετικέτες:

Έτος:

1999
 
Ημερολόγιο
Εκδηλώσεις