Παράλειψη εντολών κορδέλας
Μετάβαση στο κύριο περιεχόμενο
Σελίδες τοποθεσίας


Αναστηλωτικές και ανασκαφικές εργασίες στον ναό του Προφήτη Ηλία στα Πετροκέρασα.

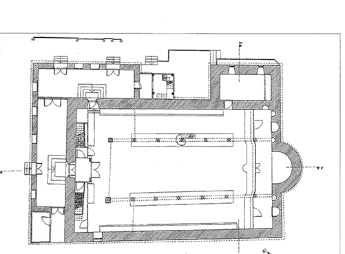
Ο ναός του Προφήτη Ηλία[1] βρίσκεται στο νοτιοανατολικό άκρο του οικισμού Πετροκέρασα, πάνω σε ύψωμα που οριοθετείται στα νοτιοδυτικά από μία απότομη ρεματιά. Ανήκει στον αρχιτεκτονικό τύπο της τρίκλιτης ξυλόστεγης βασιλικής με ημικυκλική κόγχη του ιερού, πιόσχημο γυναικωνίτη και σύγχρονο εξωνάρθηκα στη δυτική και σε τμήμα της βόρειας πλευράς, στην οποία και προσκολλώνται το μονόχωρο παρεκκλήσι των Αγίων Τεσσαράκοντα Μαρτύρων και ένα νεότερο κωδωνοστάσιο (Εικ. 1-2). Η οικοδόμηση του ναού ανάγεται σε δύο διαφορετικές χρονικές φάσεις, που συνάδουν με την ιστορική διαδρομή του χωριού, το οποίο περιλαμβάνεται σε αυτά που κάηκαν και λεηλατήθηκαν κατά την επανάσταση του 1821. Συγκεκριμένα, σε εντοιχισμένο στη βόρεια τοιχοποιία λιθανάγλυφο καθώς και σε εντοιχισμένο στη νότια τοιχοποιία κεραμοπλαστικό σταυρό αναγράφεται η χρονολογία 1810, που αντιστοιχεί στην αρχική, μη σωζόμενη σήμερα, οικοδομική φάση του ναού, ο οποίος μετά την καταστροφή του στα 1821, ξαναχτίστηκε στα 1835 πάνω στα λείψανα του προϋπάρχοντος.

Ο ναός από τη δεκαετία του 1950 και μέχρι τα τέλη του 20ου αι. δέχθηκε πλήθος αυθαίρετων επεμβάσεων που αλλοίωσαν κατά πολύ την αρχική του εικόνα: α) καθαιρέθηκε η ανοιχτή στοά που τον περιέβαλε από τη δυτική και από τμήμα της βόρειας πλευράς και κατασκευάστηκε στη θέση της ο υφιστάμενος λιθόκτιστος εξωνάρθηκας, β) καλύφθηκε το δάπεδο του εξωνάρθηκα από μωσαϊκά πλακίδια με σχέδια σε στυλ "αρ νουβό", γ) διευρύνθηκαν σε ύψος και πλάτος τρία παράθυρα της νότιας όψης και δύο παράθυρα της βόρειας όψης, δ) καθαιρέθηκε το καφασωτό που διαχώριζε τον πρόναο από τον κυρίως ναό και ανακαινίστηκε ο γυναικωνίτης, η πρόσβαση στον οποίο γίνεται πλέον μέσω δύο νεότερων κλιμακοστασίων, ε) καλύφθηκε το δάπεδο του νάρθηκα και του κεντρικού κλίτους με μωσαϊκά πλακίδια κεραμιδί χρώματος, το δάπεδο των πλαγίων κλιτών με εναλλάξ τοποθετημένα πλακίδια άσπρου και κεραμιδί χρώματος και το δάπεδο του ιερού με τσιμεντοκονία κόκκινου χρώματος. Το έτος 2000 διενεργήθηκε επισκευή και ανακεράμωση της στέγης του ναού, και λίγο αργότερα πραγματοποιήθηκε η αντικατάσταση του τσιμεντοστρωμένου δαπέδου του ιερού με πλακίδια κεραμιδί χρώματος.

Το 2016, με αφορμή την εκτέλεση αυθαίρετων εργασιών αντικατάστασης των πλακιδίων δαπέδου του εξωνάρθηκα από το Εκκλησιαστικό Συμβούλιο του ναού, η Εφορεία προέβη στην έκδοση σήματος διακοπής εργασιών και στη συνέχεια, μετά την υποβολή της απαιτούμενης από το νόμο αρχιτεκτονικής μελέτης, διενεργήθηκε ανασκαφική έρευνα, που στόχο είχε τον τυχόν εντοπισμό παλαιότερου δαπέδου. Κατά τη διάρκεια της έρευνας ήρθαν στο φως νέα ενδιαφέροντα στοιχεία, τα οποία εμπλουτίζουν τις γνώσεις μας για την οικοδομική ιστορία του μνημείου. Συγκεκριμένα, κάτω από παχύ στρώμα νεότερων επιχώσεων αποκαλύφθηκε σε όλο σχεδόν το χώρο του εξωνάρθηκα, ο φυσικός εύθρυπτος βράχος, πάνω στον οποίο είναι κτισμένος ο ναός. Ο βράχος σε όλη την αποκαλυμμένη έκτασή του φέρει εμφανώς λαξευμένη και επιπεδοποιημένη την ανώτερη επιφάνειά του, στοιχείο που μαρτυρεί τη χρήση του ως δάπεδο, πιθανώς κατά την πρώτη κιόλας οικοδομική φάση του ναού, ήτοι αυτή του 1810. Ίχνη ασβεστοκονιάματος, που εντοπίστηκαν αποσπασματικά πάνω στο βράχο, ενδεχομένως να αντιστοιχούν σε επέμβαση επικάλυψής του κατά την β΄ οικοδομική φάση του ναού, δηλαδή αυτή του 1835.

Η εικόνα διαφοροποιείται στο βόρειο τμήμα του εξωνάρθηκα, όπου ανάμεσα σε τεχνητές πιθανώς βαθύνσεις του βράχου, εντοπίστηκε το βορειοδυτικό τμήμα κτίσματος, δομημένου με ημίεργους λίθους και λάσπη ως συνδετικό υλικό. Ο δυτικός τοίχος του κτίσματος βαίνει με κατεύθυνση Β-Ν κάτω από τη βορειοδυτική γωνία του υφιστάμενου ναού, ήτοι της οικοδομικής φάσης του 1835, ενώ ο βόρειος τοίχος βαίνει με κατεύθυνση Δ-Α κάτω από τον αντίστοιχο τοίχο του νεότερου εξωνάρθηκα[2] (Εικ. 3-4). Όπως δε, προέκυψε από διερευνητική τομή που διενεργήθηκε σε επαφή με την εξωτερική πλευρά του βόρειου εξωνάρθηκα, ο υποκείμενος τοίχος θεμελιώνεται πάνω στον φυσικό βράχο και είναι ισοπαχής και οργανικά δεμένος με τον δυτικό τοίχο του κτίσματος (Εικ. 5). Συμπερασματικά, βάσει των ανασκαφικών δεδομένων, προκύπτει ότι οι δύο κάθετοι μεταξύ τους λασπόκτιστοι τοίχοι, πάχους 1.20 μ.-1.25 μ., ορίζουν ένα ιδιαίτερα προσεγμένο κατασκευαστικά κτίσμα, που φέρει ίχνη ενισχυμένης δόμησης με παχύ ασβεστοκονίαμα στα ανώτερα σωζόμενα τμήματά του. Το κτίσμα πιθανώς ήταν ήδη κατεστραμμένο και λιθολογημένο κατά την αρχική οικοδομική φάση του ναού, το 1810.

Για λόγους προστασίας των ανασκαφικών ευρημάτων ακολούθησε η επικάλυψή τους με γεωύφασμα, επάνω από το οποίο διαστρώθηκε άμμος και χώματα που προέκυψαν από την ανασκαφή.  Για την αποκατάσταση του δαπέδου χρησιμοποιήθηκε φυσική πέτρα υπόλευκου χρώματος και ορθογωνικού σχήματος, με αδρή επιφάνεια, η οποία τοποθετήθηκε υπό την επίβλεψη της υπηρεσίας μας.



[1] Εφορεία Βυζαντινών Αρχαιοτήτων Θεσσαλονίκης, «Δίκτυο αρχαιολογικών χώρων και μνημείων Κεντρικής Μακεδονίας (Νομοί Θεσσαλονίκης – Κιλκίς- Πιερίας), Πρόσωπο και Χαρακτήρας», Τετράδια Αρχαιολογίας 5, Θεσσαλονίκη 2007, 93-95, Γ. Δ. Κουκλιάτης, Ο Ιερός Ναός του Προφήτη Ηλία Πετροκέρασων Θεσσαλονίκης (1810-2010) και τα ξωκκλήσια του χωριού, Θεσσαλονίκη 2010, Δ. Μακροπούλου – Α. Τοκμακίδου, Νομός Θεσσαλονίκης. Μνημειακή χαρτογράφηση του υπαγόμενου στην πρώην Επισκοπή Αρδαμερίου γεωγραφικού χώρου, (υπό εκτύπωση σε Αφιερωματικό τόμο προς τιμήν του αρχαιολόγου Ι. Αθαν. Παπάγγελου).

[2] Η αποτύπωση των ανασκαφικών ευρημάτων πραγματοποιήθηκε από τον αρχιτέκτονα της Εφορείας Ξ. Γιαννάκη. ​

Φωτογραφίες:

Ημερομηνία:

01/01/2016 - 01/12/2016

Τόπος:

  • Πετροκέρασα, Θεσσαλονίκης

Αρμόδιες Υπηρεσίες ή Φορείς:

Επιστημονικοί Υπεύθυνοι:

​Αθηνά Τοκμακίδου, αρχαιολόγος

τηλέφωνο: 2310 801402

email: efapeth@culture.gr

Ετικέτες:

Έτος:

2016
 
Ημερολόγιο
Εκδηλώσεις