Παράλειψη εντολών κορδέλας
Μετάβαση στο κύριο περιεχόμενο
Σελίδες τοποθεσίας


Αναστηλωτικές και ανασκαφικές εργασίες στον ναό του Αγίου Αθανασίου στη Χωρούδα.

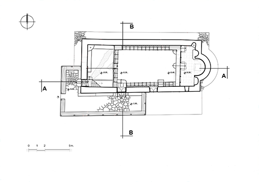
Ο ναός του Αγίου Αθανασίου[1], χαρακτηρισμένος ως ιστορικό διατηρητέο μνημείο (Υ.Α. ΑΡΧ / Β1 / Φ34 / 2134 / 70 / 23-1-81, ΦΕΚ 99 / Β / 16-2-81), ανήκει στον αρχιτεκτονικό τύπο της μονόχωρης μεταβυζαντινής βασιλικής με νάρθηκα, γυναικωνίτη και στοά στη νότια και σε τμήμα της δυτικής όψης της (Εικ. 1). Καλύπτεται με κεραμοσκεπή στέγη, όμως η προεξέχουσα ημικυκλική κόγχη του ιερού φέρει την αρχική πιθανώς κάλυψη με σχιστόπλακες. Ο ναός, η ανέγερση του οποίου ανάγεται στον 16ο αι., δέχθηκε ανακαινιστικές επεμβάσεις στο πρώτο μισό του 18ου αι., καθώς και στα μέσα του 19ου αι., περίοδο κατά την οποία κατασκευάστηκε το τέμπλο και ο γυναικωνίτης με το κοιλόκυρτο στηθαίο. Το εσωτερικό του είναι κατάγραφο με τοιχογραφίες του α' μισού του 18ου αι.

Κατά το παρελθόν, εκτελέστηκαν στο μνημείο εργασίες καθαρισμού και συντήρησης του τοιχογραφικού του διακόσμου, καθώς και εργασίες ανακεράμωσης της στέγης του[2], οι οποίες συνέβαλλαν σημαντικά στη διατήρησή του. Ωστόσο, με το πέρασμα του χρόνου, η φυσική γήρανση των υλικών και η έλλειψη συστηματικής φροντίδας και συντήρησης των δομικών στοιχείων, επέφεραν σημαντικές αλλοιώσεις και αποκολλήσεις του φέροντα οργανισμού. Επιπροσθέτως, πλήθος αυθαίρετων επεμβάσεων αλλοίωσαν κατά πολύ την εξωτερική εικόνα του ναού, οι τοιχοποιίες του οποίου παρουσίαζαν σαφή διάκριση σε αρμολογημένες (ανατολική και βόρεια) και σε επιχρισμένες με ασβέστη. Με στόχο την ολοκληρωμένη προστασία των μορφολογικών και τυπολογικών χαρακτηριστικών του σημαντικού αυτού μνημείου της ελληνικής περιφέρειας, η Εφορεία μας προέβη σε εκτεταμένης κλίμακας επεμβάσεις συντήρησης και ανάδειξής του, οι οποίες περιλαμβάνουν:

1. Τη συντήρηση του τοιχογραφικού διακόσμου του, η οποία υλοποιήθηκε βάσει μελέτης[3], εγκεκριμένης με την αριθ. ΥΠΑΙΘΠΑ/ΣΥΝΤ/Φ10/123020/5059/12-11-2012 απόφαση της Διεύθυνσης Συντήρησης Αρχαίων και Νεότερων Μνημείων (Εικ. 2-3) και

2. Την αποκατάσταση του με ήπιες επεμβάσεις, που διενεργήθηκαν βάσει μελέτης[4], εγκεκριμένης με την αριθ. ΕΦΑΠΕΘ/867/08-03-2016 απόφαση. Συγκεκριμένα, σύμφωνα με την παραπάνω μελέτη, πραγματοποιήθηκαν οι εξής εργασίες: α) η αποστράγγιση των υδάτων του δαπέδου του νάρθηκα, β) ο καθαρισμός των αρμών και η αρμολόγηση των εξωτερικών επιφανειών και των εσωτερικών όψεων του νάρθηκα, γ) η καθαίρεση των πλακιδίων του δαπέδου του κυρίως ναού, η διενέργεια ανασκαφικής εργασίας και η αποκάλυψη του αρχικού δαπέδου του (Εικ. 4-5), δ) ο καθαρισμός λίθων και αρμών, καθώς και η αρμολόγηση και η συμπλήρωση του αρχικού δαπέδου, ε) η καθαίρεση των φθαρμένων μεταγενέστερων πλίνθινων πλακών του δαπέδου του ιερού και η τοποθέτηση ορθογωνισμένων λίθινων πλακών στο ιερό και στο νάρθηκα και στ) η επισκευή της στέγης, τα ξύλινα στοιχεία της οποίας παρουσίαζαν αποσάθρωση (Εικ. 6-7).

 

Όσον αφορά στην ανασκαφική έρευνα που διενεργήθηκε στον κυρίως ναό, αξίζει να αναφερθεί ότι αυτή έφερε στο φως νέα ενδιαφέροντα στοιχεία για το είδος και τη μορφή του αρχικού δαπέδου του. Συγκεκριμένα, η απομάκρυνση των νεότερων μωσαϊκών πλακιδίων με τα οποία επιστρώθηκε ο κυρίως ναός πιθανώς στη δεκαετία του 1960, καθώς και η απομάκρυνση του υποκείμενου αυτών στρώματος τσιμεντοκονίας, αποκάλυψε δάπεδο από τετράπλευρες αλλά και ακανόνιστου σχήματος πλακαρές πέτρες, οι οποίες ενώνονται μεταξύ τους με ενδιάμεσο αρμό και διασώζονται κατά χώραν σε καλή κατάσταση διατήρησης (Εικ. 5). Στο κεντρικό τμήμα του δαπέδου, ανάμεσα στις πλακαρές πέτρες, διατηρούνται αρκετά κομμάτια τετράπλευρων κυρίως πλίνθων, που είτε φέρουν αλλοιωμένες και φθαρμένες τις επιφάνειες τους, είτε φέρουν ίχνη επικάλυψης κονιάματος. Ακολούθησε η  συντήρηση και ανάδειξη του αρχικού αυτού δαπέδου, η αισθητική του οποίου συνάδει με το ύφος και τον χαρακτήρα ενός ταπεινού μεταβυζαντινού μνημείου.

Επιπλέον, στο πλαίσιο των εργασιών αποκατάστασης του δαπέδου του ναού, πραγματοποιήθηκε η απομάκρυνση, ο επιφανειακός καθαρισμός με υδροβολή και η επανατοποθέτηση των λίθινων ορθογώνιων πλακών που  καλύπτουν την άνω επιφάνεια του στυλοβάτη του τέμπλου. Κατά την ανωτέρω εργασία εντοπίστηκε ένα χάλκινο νόμισμα τουρκοκρατίας, με οπή ανάρτησης. Επίσης, κατά την απομάκρυνση των φθαρμένων πλίνθινων πλακών από το δάπεδο του ιερού, αποκαλύφθηκε στη νοτιοανατολική γωνία του, μεγάλο τμήμα ενός όρθια τοποθετημένου πιθαριού. Το αγγείο, στο εσωτερικό του οποίου βρέθηκαν δύο πώματα από γυάλινα σκεύη, αφέθηκε κατά χώραν κάτω από τις ορθογωνισμένες λίθινες πλάκες με τις οποίες επιστρώθηκε το δάπεδο.



[1] Εφορεία Βυζαντινών Αρχαιοτήτων Θεσσαλονίκης, «Δίκτυο αρχαιολογικών χώρων και μνημείων Κεντρικής Μακεδονίας (Νομοί Θεσσαλονίκης - Κιλκίς - Πιερίας), Πρόσωπο και Χαρακτήρας», Τετράδια Αρχαιολογίας 5, Θεσσαλονίκη 2007, 116-117.

[2] Α. Τοκμακίδου, Χωρούδα. Ναός Αγίου Αθανασίου, Α.Δ. 61 (2006), Χρονικά Β΄2, Αθήνα 2014, 832.

[3] Η μελέτη με τίτλο «Μελέτη συντήρησης τοιχογραφικού διακόσμου, ξύλινης επίπλωσης και φορητών εικόνων Ι. Ν. Αγίου Αθανασίου Χωρούδας, Δ. Βερτίσκου Θεσσαλονίκης, Περιφέρειας Κεντρικής Μακεδονίας» εκπονήθηκε από ομάδα εργασίας της 9ης Εφορείας Βυζαντινών Αρχαιοτήτων, στην οποία συμμετείχαν η συντηρήτρια έργων τέχνης Η. Καραγιαννίδου, η αρχαιολόγος Αικ. Κούσουλα και η αρχιτέκτονας-αναστηλώτρια Β. Καλταπανίδου.

[4] Η μελέτη με τίτλο «Μελέτη αποκατάστασης Ι. Ν. Αγίου Αθανασίου στη Χωρούδα του Δήμου Λαγκαδά» εκπονήθηκε από τους αρχιτέκτονες της Εφορείας Αρχαιοτήτων Περιφέρειας Θεσσαλονίκης Ξ. Γιαννάκη και Γ. Νιαούρη και εγκρίθηκε ύστερα από εισήγησή της στο Τοπικό Συμβούλιο Μνημείων Κεντρικής Μακεδονίας.

Φωτογραφίες:

Ημερομηνία:

01/01/2016 - 01/12/2016

Τόπος:

  • Χωρούδα , Θεσσαλονίκης

Αρμόδιες Υπηρεσίες ή Φορείς:

Επιστημονικοί Υπεύθυνοι:

​Αθηνά Τοκμακίδου, αρχαιολόγος         

Ιωάννης Νιαούρης, αρχιτέκτονας        

​Ξενοφών Γιαννάκης,  αρχιτέκτονας    

τηλέφωνο: 2310801402

email: efapeth@culture.gr                                                            

Ετικέτες:

Έτος:

2016
 
Ημερολόγιο
Εκδηλώσεις